BİTLİS ŞEHİRLERARASI OTOBÜS TERMİNALİ
27.08.2021
Bitlis
Bitlis-Tatvan Şehirlerarası Otobüs Terminali Revize Projesi
İnşaat Alanı: 6329,58 m²
Tayfun Yüksek / mimar
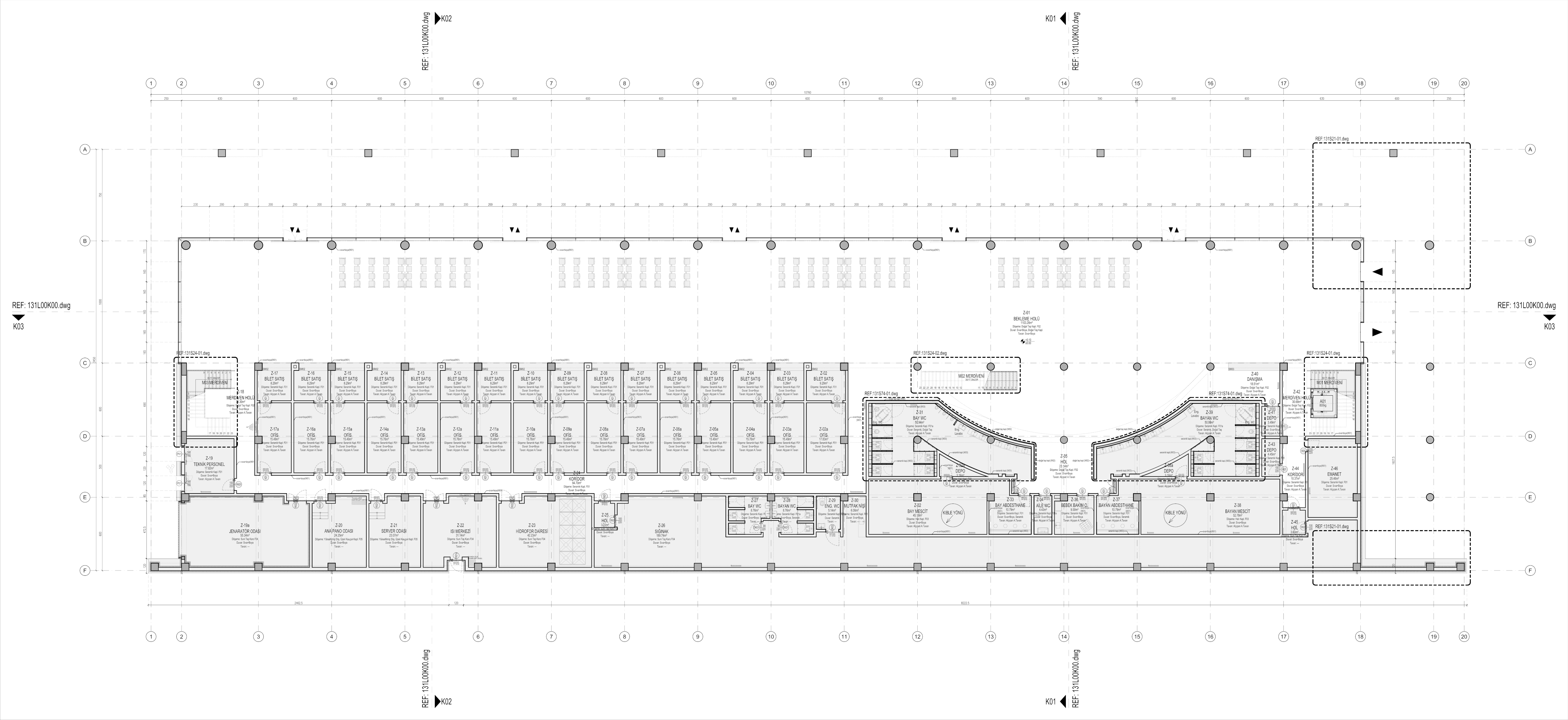
Bitlis-Tatvan ve Muş yolları kesişiminde, Bitlis Merkez ve Tatvan ilçeleri için ortak çalışacak şehirlerarası otobüs terminali, iklim koşulları dikkate alınarak tasarlanan yapı formu içerisinde kurgulanmıştır. Bitlis gibi yoğun kar yağışının olduğu bölgelerde kar düşmesi sonucu her yıl can kaybı, yaralanma ve maddi hasar meydana gelmektedir. Bu nedenle tek yönde eğimli çatı formu ile, çatıda biriken karın özel olarak ayrılmış kar birikme alanına düşmesi, olası kazaların önlenmesi planlanmıştır.
Terminal; 16 peron ve bilet satış ofisi, 196 araçlık açık otopark, asma katta yeme-içme mekanları, yönetim ofisi, yapı boyunca uzanan ana hol, ıslak hacimler ve teknik birimlerden oluşmaktadır. Tavan tipi sulu sistem radyant paneller ile ısıtma, otomasyona bağlı motorlu duman tahliye pencereleri ile doğal yolla havalandırma planlanmıştır.














