İZMİR KONAK BELD. HİZM. BİNASI MİMARİ PROJE YARIŞMASI
28.07.2015
İzmir
İzmir Konak Belediyesi
İzmir Konak Belediye Hizmet Binası
Tayfun Yüksek / mimar
Mehmet Özer / mimar
Ajda M. Hubenova / mimar
Konak Belediyesi yeni hizmet binası arsası, bir yanda Yeşildere Caddesi diğer yanda İzban ray hattı ile yaya erişimi tamamen kısıtlanmış, ciddi ulaşım problemleri olan, Yeşildere Caddesi boyunca uzanan Melez Deresi gibi bir yeşil potansiyelin yeterince değerlendirilemediği ve kentsel gelişimini tamamlayamamış, kalitesiz çevre ve yaşam alanı barındıran, eski sanayi tesis ve atölyelerinin bulunduğu, bir alanda yer almaktadır. Bu iki sınır – Yeşildere Caddesi ile birlikte Melez Deresi ve İzban hattı- yarışma alanını erişime kapattığı gibi Kocakapı, Yenidoğan ve Güney mahalleleri arasında da ciddi bir sınır-duvar oluşturmakta ve ulaşımı engellemektedir.
Bu nedenle alanın; ulaşım-erişim, çevre-mekan kalitesi, alan potansiyellerinin kullanımı gibi sorunlarının çözüme kavuşturulması, tasarımın ana ilkesi olmuştur.
Üst ölçekte ilk üzerinde durulan, ulaşım problemlerinin yaya odaklı çözümü olmuştur. Bunun için Gaziler caddesindeki batçık iptal edilerek, alanın doğusunda bulunan “İzban” hattının yerin altına alınması; tarihi Kemer Gar Binası odaklı bir meydan oluşturularak trene erişimin yerin altında çözülmesi önerilmiştir. Bu sayede;
- Yeraltına alınan İzban hattı alanı boyunca sürekli yeşil bir kentparkı meydana getirilmiş, gar binası ile birlikte bir açık hava tren müzesi/sergisi tasarlanmış,
- Yenidoğan ve Güney mahalleleri arasındaki ulaşımsızlık, bu kent parkı boyunca yer yer verilen geçişlerle giderilmiş,
- Gaziler Caddesi’ndeki batçık nedeniyle iki katına çıkan toplam yol genişliği (transit batçık geçiş + batçık boyunca zemin kot ulaşımı için yan yol) 16m’de çözülerek; arta kalan alan yaya kullanımına ayrılmış, böylelikle Gazi Caddesi boyunca Kocakapı, Yenidoğan ve Güney mahallelerini birbirine bağlayan bir yaya promenadı oluşturulmuştur. Bu yaya promenadı; Melez Deresi yeşil kent omurgası ve tarihi Kervan Köprüsü’nden başlayıp belediye meydanının önünden geçerek Kemer Garı Meydanı’na ulaşan, buradan Barış Parkı’na kadar devam eden; yaya odaklı yeşil ulaşım-aktivite-buluşma-dinlenmeye imkan veren bir yaya yolu olarak tasarlanmıştır.
Belediye binası arsası ile Melez Deresi yeşil kent omurgasını birbirinden koparan, Yeşildere Caddesi ve Gaziler Caddesi arasındaki bağlantı yolları iptal edilerek bu bağlantılar; 1 nolu yarışma alanının güney ucunda kalan mevcut bağlantı ile Gürçeşme Caddesi’nden ve imar planında 15m’lik yol olarak genişletilen 1309 sk.’tan sağlanmıştır. Böylelikle belediye binası ve meydanının Melez Deresi’ne açılımı sağlanmış, arsasının hemen batısındaki taşıt üstgeçidinin altı düzenlenerek yeşil kent omurgasıyla belediye binası arsası bütünleştirilmiştir.
Diğer üst ölçek ulaşım problemi ise Yeşildere Caddesi’nin hem Kocakapı – Yenidoğan mahallelerini birbirinden koparması, hem de Melez Deresi yeşil kent omurgasını bölerek yaya erişimini engellemesidir. Bunun çözümü için, 1 nolu alanın tam merkezinde bir “yeşil üstgeçit” tasarlanmış, yaya akışının ve yeşilin sürekliliği sağlanmıştır. Belediye arsasının hemen güneyinde bulunan bu “yeşil üstgeçit” Yeşildere Caddesi’nin üzerinden geçerek, iki mahalle arasında yaya erişimi sağlamakta ve belediye meydanına uzanmaktadır.
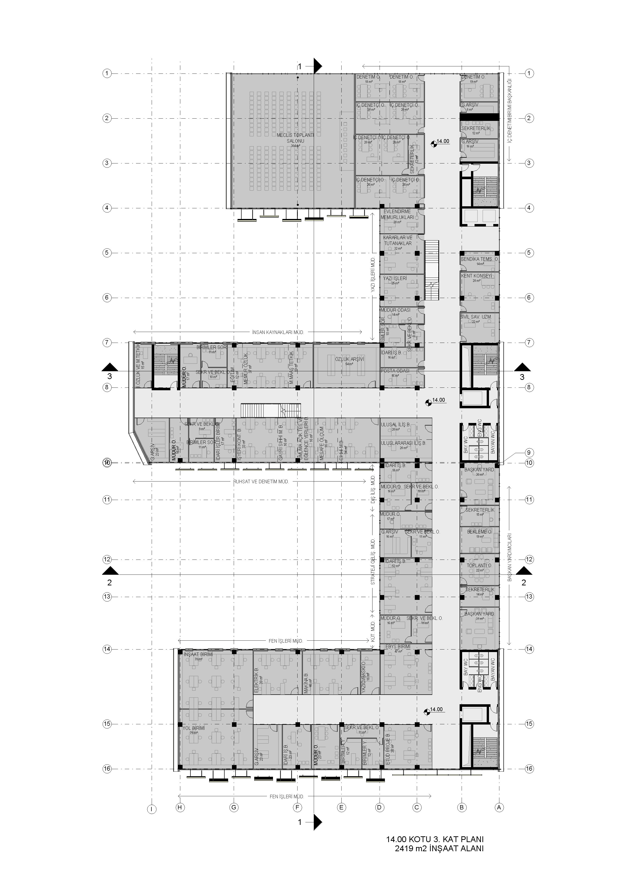
Yeni belediye binası ve meydanı; Gaziler Caddesi boyunca tasarlanan “yaya promenadı” ve “yeşil üstgeçit”in meydana uzanan yaya yolunun kesişiminde bulunmaktadır. Arsanın konumu ve kuzey-güney yönelimi dikkate alınarak, güney ışığından maksimum fayda sağlanacak şekilde doğu-batı aksında yerleştirilen üç kütle, bir ana sirkülasyon bloğu ile birbirine bağlanmıştır, iç ve dış mekan komforu zemin katlardaki geçiş ve boşluklar ile üst katlarda çeşitli cephe sistemleri ile sağlanmıştır. Ana yaya akışının Gaziler Caddesi üzerinden olacağı öngörülmüş, belediye meydanı arsanın kuzeyinde, oluşturulan yaya promenadına eklemlenecek şekilde tasarlanmıştır. Meydan yönünden ve yakın çevre alternatif yaya bağlatısı “yeşil üstgeçit” üzerinden alana yaklaşım kurgulanmış ve belediye binası zemin ve 1. Katı bu doğrultuda şeffaf, geçirgen, ulaşılabilir şekilde düşünülmüştür.
























