TEKİRDAĞ B.B. BELD. HİZM. BİNASI MİMARİ PROJE YARIŞMASI
06.04.2015
Tekirdağ B.B.
Tekirdağ B.B. Hizmet Binası ve Çevre Düzenlemesi
Tayfun Yüksek / mimar
Mehmet Özer / mimar
Ajda M. Hubenova / mimar
Emre Gönül / peyzaj mimarı
Deniz Çavuş / şehir plancısı
Proje konusu, İmar Planında kent merkezi olarak tanımlanan, Tekirdağ Büyükşehir Belediye Hizmet Binasının yapılacağı alanın da içinde bulunduğu yaklaşık 520.000 m2’lik alanın tasarlanmasıdır.
İmar planında kentin büyüme aksı ve yeni merkezi olarak belirlenen, halihazırda yapılaşmamış alanın; eski kent dokusunun yoğun olduğu mevcut merkez, tüm kıyı hattı ve planlanan alanın kendi dinamikleri ile doğru bir ilişki ve etkileşim içerisinde olması gerekmektedir. Tekirdağ B.B.Hizmet Binasının yapılacağı bu alanın, planlandığı gibi pratikte de bir kent ve cazibe merkezi haline gelmesi ancak, bu ilişkilerin işler nitelikte planlanması ve uygulanmasına bağlıdır.
Bu sebeple tasarımda öncelikli olarak bu ulaşım-etkileşim ilişkileri incelenmiş, sorunlara yeşil-sürekli-yaya odaklı-şeffaf-aktif-çok sesli bir çözüm ortaya konmaya çalışılmıştır.
Kuzey-güney aksı boyunca uzanan yeşil aks, belediye meydanında da devam ettirilmiş, böylelikle aktif yeşilin sürekliliği sağlanırken meydanın da mekansal ve işlevsel olarak zenginleşmesi sağlanmıştır.
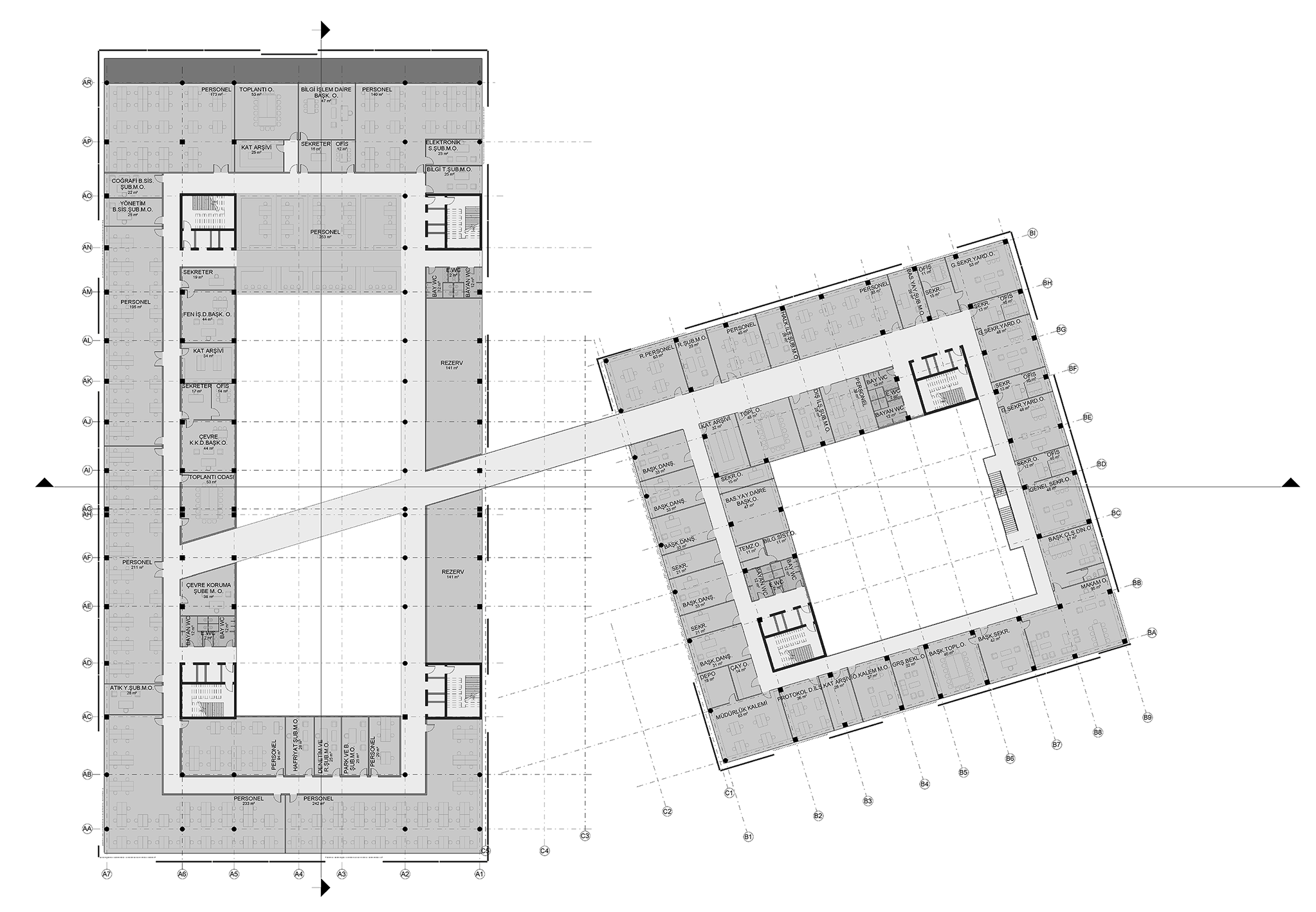
Belediye binası iki ana kütle halinde çözülmüş, başkanlık ve ilgili birimleri ile doğrudan hizmet birimleri birbirinden ayrılmıştır. Bu iki kütle; konferans salonu, çok amaçlı salon ve meclis salonunun ve ilgili servis birimlerinin bulunduğu alt zemin ve başkanlık katındaki bir köprü ile birbirine bağlanmaktadır.
İki kütle arasındaki sokak, mevcut kent merkezinden gelen yaya trafiğini içeri alıp belediye meydanına ve yeşil aksın merkezine yönlendirmektedir. Bu sokakla birlikte zemin kat şeffaf, ulaşılabilir ve aktivite odaklı olarak planlanmıştır.
Belediye hizmet binası girişleri; ana giriş belediye meydanından, kültür odaklı giriş kent merkezi ve arsanın hemen batı parselindeki kültür tesisi alanı karşısından, iç sokaktan ve protokol girişi de arsanın güneyinden, alt zemin kattan olacak şekilde sirkülasyon organize edilmiştir.
















