BALIKESİR AİLE SAĞLIĞI MERKEZİ
25.03.2022
Balıkesir
Balıkesir İl Sağlık Müdürlüğü
BALIKESİR SINDIRGI İLÇE SAĞLIK MÜDÜRLÜĞÜ (T10), CAMİCEDİT AİLE SAĞLIĞI MERKEZİ (4 AHB), 112 ACİL SAĞLIK HİZMETLERİ İSTASYONU
Tayfun Yüksek / mimar
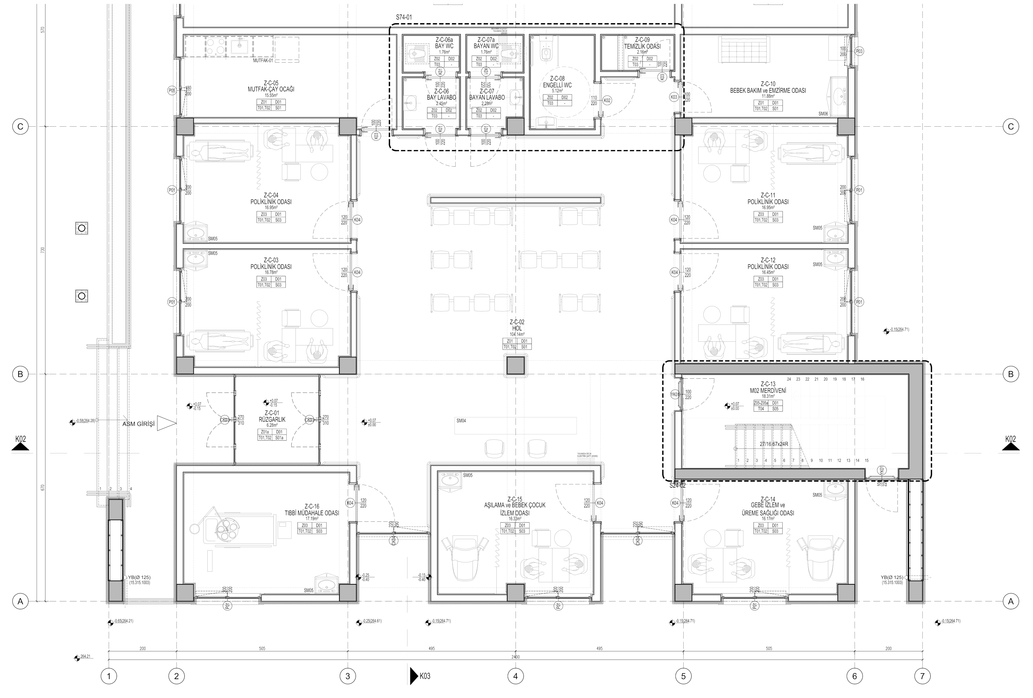
Balıkesir Sındırgı İlçe Sağlık Müdürlüğü (T10), Camicedit Aile Sağlığı Merkezi (4 Ahb), 112 Acil Sağlık Hizmetleri İstasyonu Binası projesi, 1674,39m² brüt alana sahip olarak, 28.27.D.A pafta 32 Ada 2 Parsel üzerinde, 2 katlı olarak tasarlanmıştır.
Fonksiyon olarak 3 ayrı yapı (ASM, TSM, 112 ASHİ) bir araya toplanmış, her biri için ayrı giriş düzenlenmiştir. 3 ayrı ana giriş ve iki yangın çıkışı olarak 3 giriş 5 çıkışı mevcuttur. Zemin katta ASM birimleri, 112 ASHİ birimleri ile TSM giriş holü ve birkaç personel birimi bulunmaktadır. 1. kat tamamıyla TSM birimlerine ayrılmıştır.
Genel tasarım biçimi olarak sade ve net geometrik çözüm yoluna gidilmiş, şartname gereği çatılı ve saçaklı olarak tasarlanması istenilen yapı, bu öğelerin oluşturduğu bir estetik ile ortaya konmaya çalışılmıştır. Saçağın 4 köşesinden yere inen solid yüzeyler sade ve net geometrik çözümü desteklemektedir. Yağmur inişleri de bu köşelerden verilerek, yapısal olarak kaplama altına alınmadan genel görünümde gizlenmiştir.
Cephe renk seçiminde, sağlık yapısı olması sebebiyle beyaz renk, ve köşe solid inişlerin oluşturduğu kısımları ayrıştırmak için koyu gri renk önerilmekle birlikte, idare onayına bırakılmıştır.
İç mekanlarda, zeminlerde genel olarak seramik, muayene ve tedavi odalarında pvc yer döşemesi kullanılmıştır. Tavanlarda alçıpan ve taşyünü kombinasyonu genel olarak kullanılmış, ıslak hacimlerde alüminyum asmatavan yerleşimi yapılmıştır. Duvarlar sıva+boya, ıslak hacimler seramik olarak detaylandırılmıştır.












