UTSO MİMARİ PROJE YARIŞMASI
30.05.2011
Uşak
Uşak T.S.O.
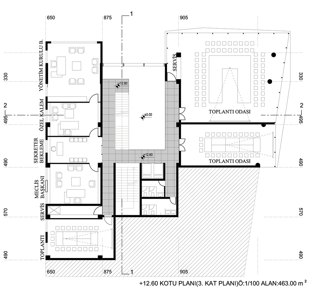
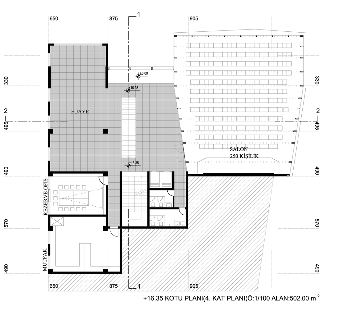
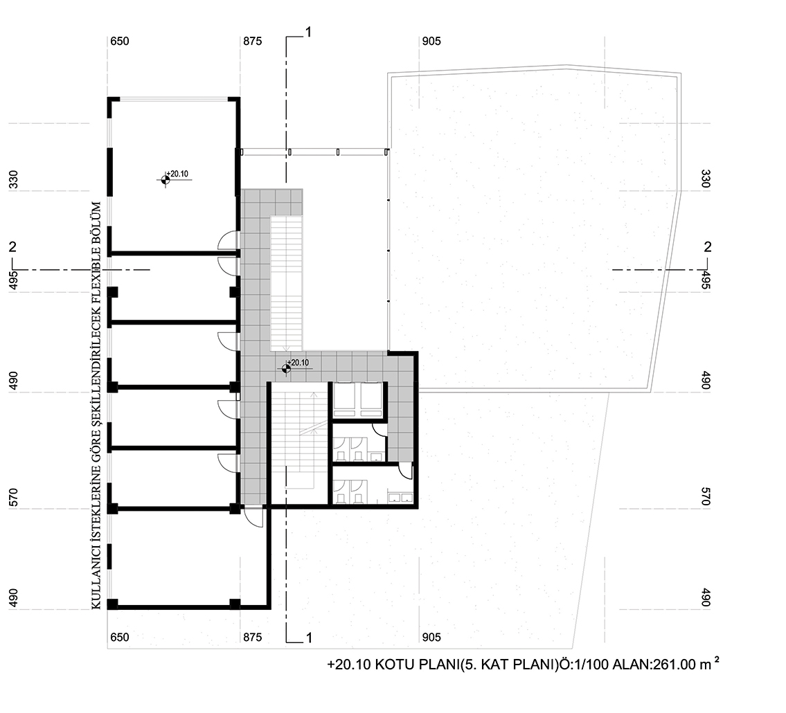
U.T.S.O. Hizmet Binası
İkincilik Ödülü
Tayfun Yüksek / mimar
Emrah Bal / mimar
Uşak Ticaret ve Sanayi Odası mevcut hizmet binasının; kullanım ömrünü doldurmuş bir bina olması ve günün gereksinimlerini karşılayamaması, bu binanın yerine yenisinin yapılması gereğini ortaya koymuştur. Bu nedenle tasarım; çağdaş bir anlayışla ve günün ihtiyaçları ve imkanları doğrultusunda şekillendirilmiş; gelişecek ihtiyaç ve imkanlara cevap verebilecek şekilde geliştirilmiştir. Gerek temsiliyet değerleri, gerekse konumu; binayı bir miheng noktası yapmaktadır. Şehrin en yoğun caddesinde alışveriş, ticaret, gezi, aktivite aksında bulunan U.T.S.O. Binası; çevrenin yeniden şekillenmesine olumlu bir katkı yapması düşünülerek tasarlanmıştır.











