UTSO MİMARİ PROJE YARIŞMASI
30.05.2011
Uşak
Uşak T.S.O.
U.T.S.O. Hizmet Binası
Üçüncülük Ödülü
Emrah Bal / mimar
Tayfun Yüksek / mimar
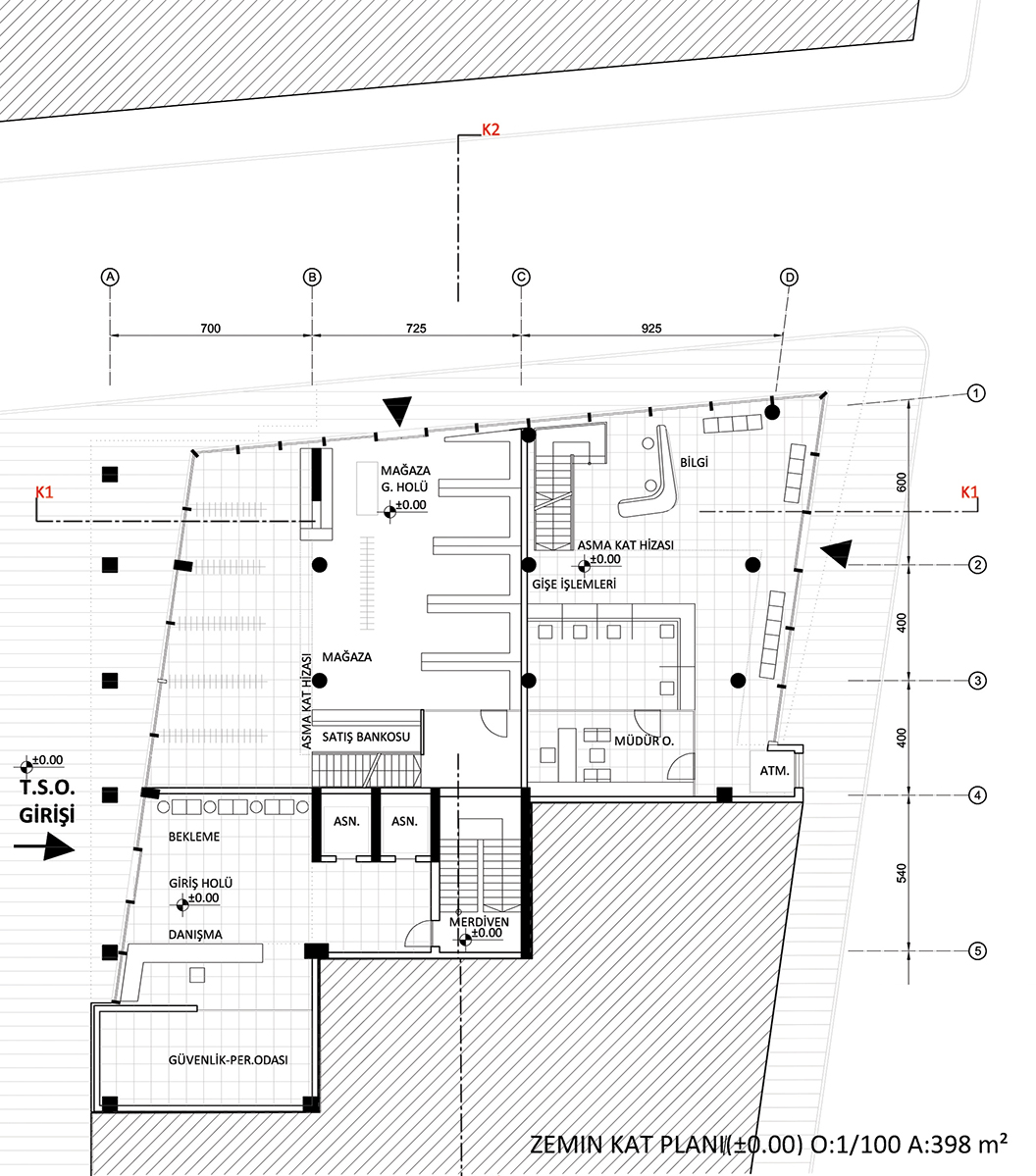
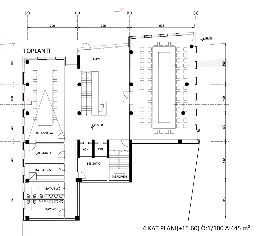
Proje tasarımında; yarışma arsasının köşe parselde yer alması, İsmet Paşa Caddesi gibi şehrin önemli akslarından birine cephe vermesi, önemli faktörler olmuştur. Burada kurgulanacak bina tasarımının şehre değer katan, çevresiyle bütünleşmiş, insanı ezmeyen, plastik özelliği güçlü, modern bir yapı olması düşüncesiyle tasarım şekillenmiştir. Zemin katta 2 işyeri, bodrumda bunlara ait teknik ve depo birimleri ve genel ihtiyaçlara hizmet eden birimler düşünülmüştür. Bina şaftı sağır yüzeyde çözülmüş, giriş ise daha korunaklı ve binaya özel bir geçiş özelliği sağlayan çıkmaz sokaktan verilmiştir. Bir başka nedeni ise şaftla daha uygun bir iletişimi olduğu için olası şafta ulaşım problemi ve alan kayıplarının önüne geçmektir. Bina çıkmalardan oluşan 5 katlı bir yapıdır. Son katta çözülen 250 kişilik konferans salonu; toplantı, yemek, balo gibi organizasyonlara da imkan vermektedir.
Taşıyıcı sistem betonarmedir. Yalnızca son katta konferans salonunun üzeri çelik konstrüksiyon olarak planlanmıştır. Dış cephe doğal taş kaplama, alüminyum giydirme cephe, üzeri güneş kontrolü sağlayan metal kaplamadır.









