MESAP MİMARİ PROJE YARIŞMASI
26.11.2012
Mersin
Mersin Sağlık Platformu
MESAP Hizmet Binası
İkincilik Ödülü
Tayfun Yüksek / mimar
Emrah Bal / mimar
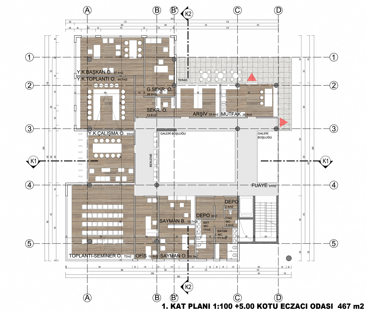
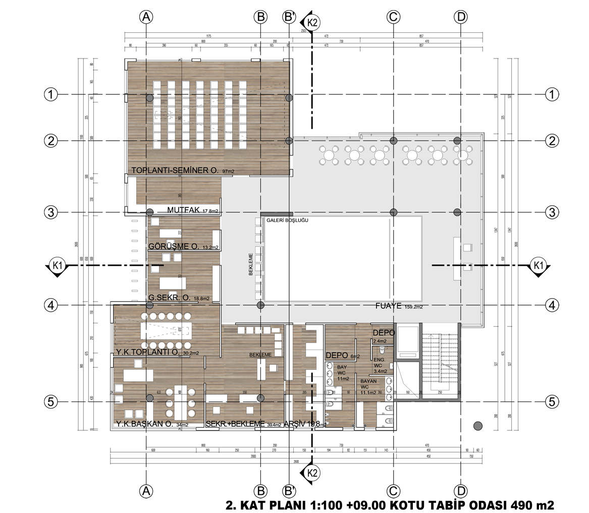
Mersin Tabip Odası, Eczacı Odası, Diş Hekimleri Odası ve Veteriner Hekimler Odası’nın tek bir çatı altında toplandığı Mersin Sağlık Platformu (MESAP) Hizmet Binası; gelişmekte ve büyümekte olan Mersin’in Yenişehir ilçesi 50. Yıl Mahallesinde yer alacaktır. Yeni gelişmekte olan yerleşim için, çevresine referans oluşturacak nitelikte, kaliteli, çağdaş, fonksiyonel ve yerleşimin coğrafi iklimsel özelliklerine uyum sağlayan bir yapı planlanmıştır.
Yapı kısmen güneye kapanarak sıcak ve güneşten korunmuş, serin ferah iç ve dış mekanlar elde edilmiştir. Bölgenin geleneksel mimarisinde önemli yeri olan ve günümüz kullanımında da vazgeçilmez TERAS ögesi kullanılarak, serin ve ferah ortak dış mekanlar meydana getirilmiştir. Bunlardan kuzeye bakan teras yaz terası olup, batıya bakan teras ise güneş kırıcı sistemi ile kontrollü güneş alarak yaz kış kullanılabilir bir nitelik barındırmaktadır.
Zemin katta bulunan Lokal hem büyük salonla ilişkisi hem de zemin kat kullanımı ve ulaşılabilirliği ile çok merkezi bir konumdadır. Aynı zamanda arka ve yan bahçe kullanımı ile kendine özel zengin mekan kurgusuna sahiptir.
Şartnamede belirtilen ihtiyaç programı gerekli görülen yerlerde yeniden yorumlanarak mevcut emsal değerleri içerisinde planlama zenginleştirilmiştir. İhtiyaç programına dahil edilmeyen; Büyük Salon Fuayesi, Teknik Hacim birimleri, Emsal Alanını işgal etmeyecek şekilde bodrum katlarda çözülerek programa eklenmiştir. Ayrıca 1865 m2 olan Emsal alanının ihtiyaç programından fazla olan 45 m2 si Tabip Odasının Kütüphane mekanına katılarak burası tüm odaların ortak kullanımına açık bir Genel Kütüphaneye dönüştürülmüş ve 3. kata alınarak terasa açılma olanağı verilmiştir.























